Moradia T3+1 junto praias | Garagem + logradouro privado | Terraço panorâmico sobre o mar

495 000€

  • 3
  • 3
  • 3
  • Utilizable: 156m2
  • Suelo: 220m2
  • C.E.: A+
  • Año: 2025
  • Ref: 66303-TEAM60653

Ubicación

Leiria, Peniche, Atouguia da Baleia, Alto do Veríssimo

Descripción

Entre o azul do Atlântico e a tranquilidade de um bairro recente, nasce esta moradia T3+1 moderna, com terraço panorâmico e vista de mar.
Com arquitetura contemporânea, garagem fechada, logradouro privado com churrasqueira e ótima exposição solar, é ideal para quem procura espaço, conforto e qualidade de vida.

Situada em zona de moradias novas, a poucos minutos das praias do Baleal (4 km), Consolação (6 km) e do centro de Peniche (7 km).
Excelentes acessos à A8 (20 km) e à Lourinhã (5 km).

220 m² de construção | Terreno 197 m² | 3 pisos | Sótão com arrumos e terraço.
Perfeita para viver junto ao mar ou como refúgio de fim de semana.

Contacte-nos e venha conhecer o local onde o seu novo lar pode começar.

Atributos

  • Vista mar
  • Trânsito de Acesso Fácil
  • Boa Exposição Solar

Divisiones

Blueprints

Nombre del piso: Rés-do-Chão

División Área Nota
de %s à %s de %s 48.04m2
Oficina 10.24m2
WC 3.42m2

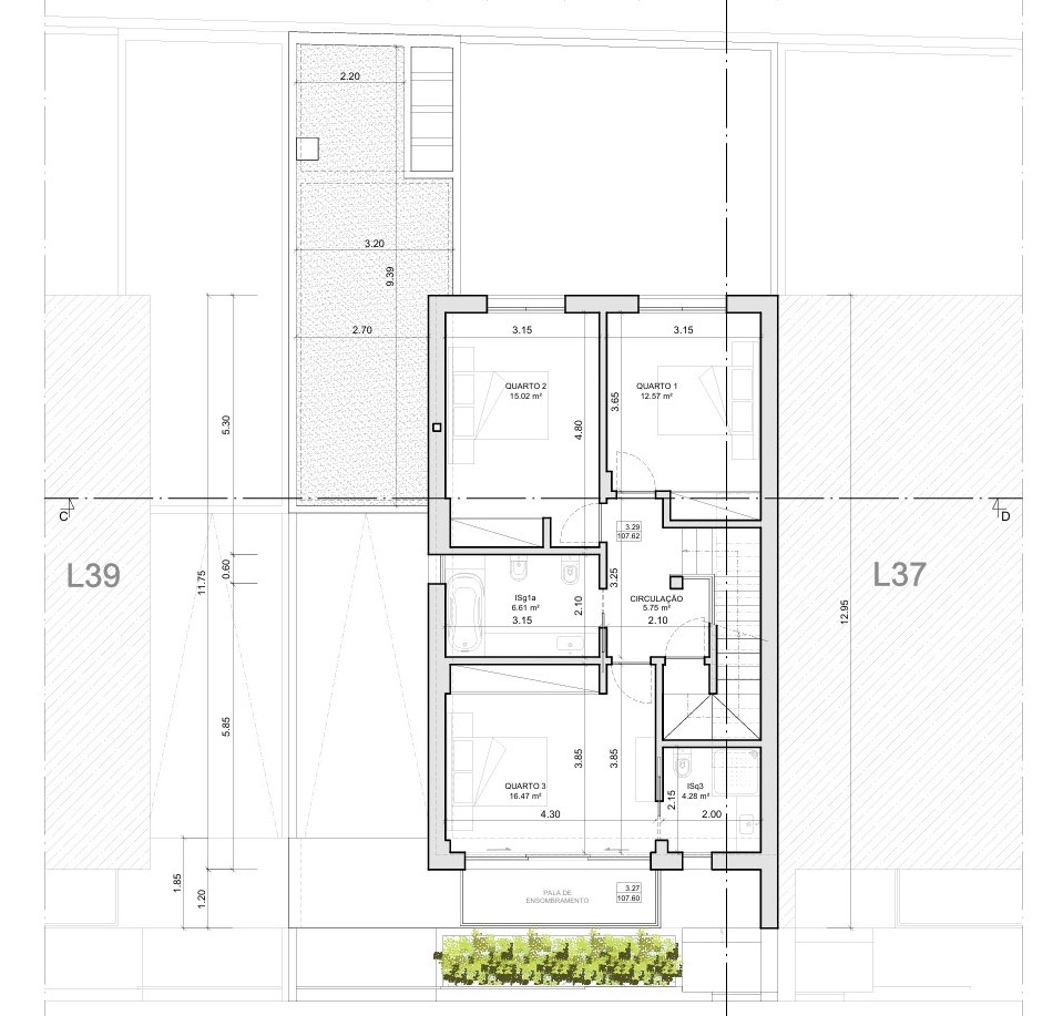
Nombre del piso: 1º Andar

División Área Nota
Dormitorio 15.02m2
Dormitorio 12.57m2
WC 6.61m2
Suite 20.75m2

Nombre del piso: 2º Andar

División Área Nota
Gabinete 14.95m2
Déconnexion